PRICE UPON APPLICATION
Specifications:
- Date of keel laid :2007 Greece
- Date of launching : 2007
- Class: hellenic merchant ships inspection service for port area
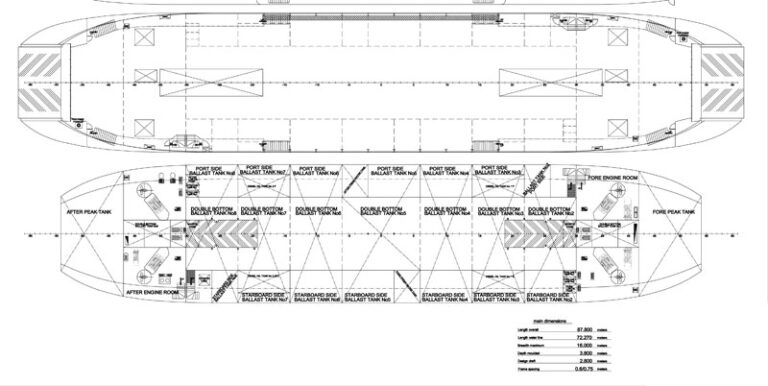
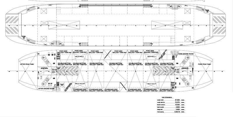
- Length overall : 87.80 metres
- Length w.line : 72.27 metres
- Breadth moulded : 16.00 metres
- Depth at main deck : 3.80 metres
- Draft (maximum) : 2.80 metres
- Register gross tonnage :878 grt
- (national greek rules)
- Displacement at draft : 2.20 meters 1542 tons
- Light weight : 838 tons
- Dwt : 704 tons
- Car deck capacity (private car) : 146
- Garage max clear height : 4.95meters
- Two ramp door aft and for
- 4 main engines Guascor with output 4×800 hp at 1800 rpm.
- With four rudder propeller systems from veth. with fix pitch 4 bladed propellers
- Service speed : 13.0 knots
- 3 main generators John deere 2×130 kva and 1×85 kva
Accommodation :
- crew : 2 two-bedded cabins and 3 four – bedded crew cabins
Passengers :
- passengers capacity for small coastal voyages (10 miles maximum distance port to port acc. greek regulation)
- winter : 300 pass
- summer : 500 pass
- full air condition for all the ship spaces, crew
- cabins, saloon, wheel house
- fitted smoke detecting system throughout





