PRICE UPON APPLICATION
Specifications:
- Place of built : Greece
- Date of keel laid : 2008
- Date of launching : 09/2009
- Month of delivery : 010/2009
- Class: hellenic merchant ships inspection service for port area
- Length overall : 80.63 metres
- Length w.line : 65.62 metres
- Breadth moulded : 15.70 metres
- Depth at main deck : 3.30 metres
- Draft (maximum) : 2.41 metres
- Register gross tonnage : 499 grt
- (national greek rules)
- Displacement at draft 2.20 meters :1116 tons
- Lght weight : 750 tons
- Dwt : 366 tons
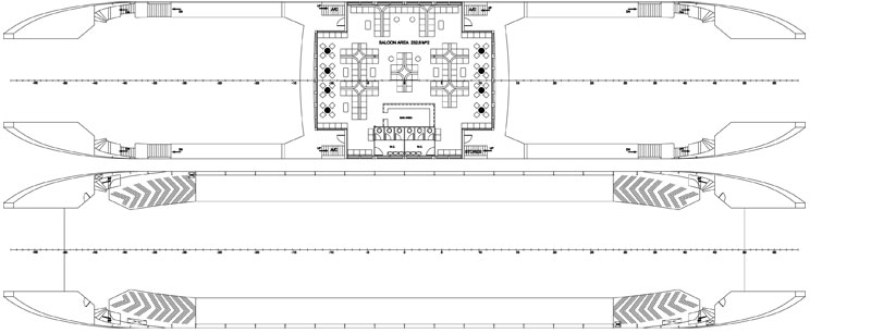
- Car deck capacity (private car) : 128
- Garage max clear height :4.80 meters
- Two ramp door aft and for
- 4 main engines Guascor with output 4×600 hp at 1800 rpm. with four rudder propeller systems from veth. with fix pitch 4 bladed propellers
- Service speed : 13.0 knots
- 3 main generators : 3×125 kw
Accommodation:
- crew : 2 single-bedded cabins and 4 two – bedded crew cabins
- passengers: passengers capacity for small coastal voyages (10 miles maximum distance port to port acc. greek regulation)
- winter : 250 pass
- summer : 500 pass
- full air condition for all the ship spaces, crew
- cabins, saloon, wheel house
- fitted smoke detecting system throughout





